Mietwohnung ab September 2025
Traumhafte Wohnung im „Dornröschenhaus“.
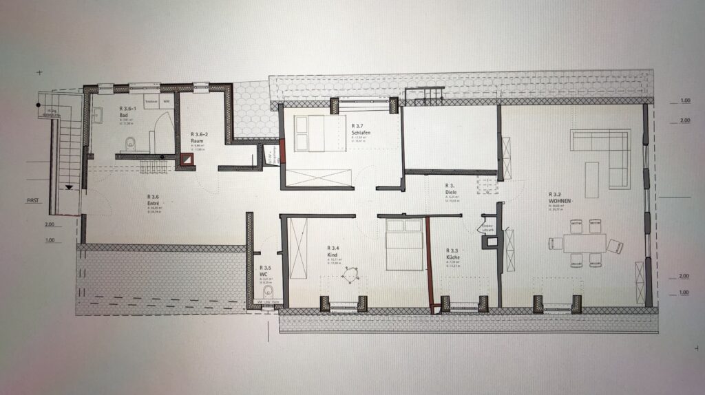
Ab September 2025 vermieten wir eine 120 qm große lichtdurchflutete 4 Zimmer Wohnung mit sagenhaftem Blick über die Dächer Weinsbergs oder ins „Grüne“.
Energetisch entspricht die Wohnung heutigem Neubaustandard. Die Sanierung erfolgte unter ökologischen und baubiologischen Gesichtspunkten – ausschließlich mit Naturprodukten um ein gesundes Wohnklima zu schaffen.
Der großzügige offene Eingangsbereich besticht durch die historischen Balken und ist bewußt so gestaltet, dass eine große Garderobe sowie Schuhkommoden ihren Platz finden.Die Wohnung verfügt über ein großes Wohn-Esszimmer, eine Küche (diese kann selbst mitgebracht werden), ein helles (Kinder)Zimmer, ein Schlafzimmer, ein Büro oder Abstellraum, ein großzügiges Bad mit ebenerdiger Dusche sowie eine Gästetoilette. Auf dem Grundstück gibt es einen Stellplatz und nach Absprache die Möglichkeit der Gartenmitnutzung.
Der besondere Charme dieser Wohnung machen die alten Teile aus, die sich harmonisch an das Neue anfügen. Sogenannte „Fenster in die Vergangenheit“ zeigen einen Blick auf alte Bausubstanzen. Wer ein denkmalgeschütztes Gebäude bewohnen möchte muss sich dessen bewußt sein, dass nicht alle gestalterischen Wünsche wie bei einer neueren Wohnung möglich sind. So darf z.B. keine Dispersionsfarbe aus dem Baumarkt auf die Wände aufgetragen werden. Auch das Aufhängen von Bildern ist aufgrund der Flächenheizung nicht überall möglich.
Das Bad verfügt über eine ebenerdige Dusche und Fußbodenheizung. Die Räume werden über Flächenheizregister beheizt, die im Fußboden, an den Wänden oder der Decke angebracht sind. Geheizt wird mit einer effizienten Festbrennstoffheizung.
Bei Interesse bitte untenstehende E-Mailadresse verwenden und eine kurze Vorstellung schicken. Vielen Dank!
Es grüßt Familie Wild
Anfragen bitte an: info@dornroeschenhaus.de





Baugerüst zu verkaufen
Ein großer Schritt ist nun getan! Unser Gerüst wird nach über zwei Jahren in den nächsten Wochen abgebaut! Hierfür suchen wir einen Käufer. Am besten jemand, der auch gerade ein Haus saniert. Es sind ca. 450 m² Layher Blitzgerüst aus Stahl mit viel Zubehör und Sonderteilen.
Um ein BG-konformes Gerüst stellen zu können, das für ALLE Gewerke nutzbar ist, sind Sonderteile notwendig. Normalerweise wird bei einem Neubau zweimal Gerüst gestellt. Zu Beginn einmal für die Rohbauer und später das Gerüst für die Putzer und Maler. Die Anforderungen der Gewerke sind jeweils etwas anders.
Wir haben innen umlaufend Konsolen mit 30cm. Dies hat den Vorteil, dass man den Ständer nicht direkt an der Wand hat und auch in der Höhe an der Wand flexibel arbeiten kann – das ist wichtig für die Putzer und Maler. Die Trauflage hat umlaufend 70cm Konsolen nach Außen. Dadurch konnten wir unser Notdach auflegen um witterungsunabhängig arbeiten zu können. Für die Arbeiten am Dach steht dadurch mehr Platz zur Verfügung, was die Arbeiten erleichtert und sicherer macht.
Der Treppenturm hat den großen Vorteil, dass man auch schwerere Sachen z.B. zu zweit tragen kann. Er erleichtert den Aufstieg enorm, da man nicht alle Ebenen ausschließlich durch enge Durchstiege erreicht. Des Weiteren sind Durchstige nur bis zu einer gewissen Höhe zulässig und müssen immer geschlossen werden. In der Realität sieht das meist anders aus. Im Falle eines Arbeitsunfalls hat die Berufsgenossenschaft dann ein gefundenes Fressen da der Gerüststeller in solch einem Fall die Kosten übernehmen muss. Wir wollten solch ein Risiko nicht eingehen und haben uns daher an alle Regularien gehalten und das Gerüst durch einen Gerüstbaumeister freigeben lassen. Die Podeste im Anschluß an den Treppenturm eigneten sich perfekt zum Zwischenlagern von Material.
Es ist natürlich etwas teurer, rechnet sich jedoch schnell. Die Handwerker danken einem ein gutes Gerüst. Sie können sicher, schnell und effektiv arbeiten. Die Kosten der zweimaligen Gerüststellung (Auf- und Abbau sowie Frachtkosten) entfallen. Bei längerer Standzeit sind die Kosten für den Kauf nach einem Jahr neutral zur Miete. Zur Projektfinanzierung kann der Verkauf des Gerüstes mit angesetzt werden.
Wir würden uns freuen, wenn das Gerüst in gute Hände kommt und weiterhin gute Dienste leistet. Gerne schicken wir die Stückliste per E-Mail zu. Den Transport können wir organisieren und mit unserem Teleskoplader verladen. Anbei ein paar Bilder unseres Ingenieurbauwerks ;-).






Teleskoplader zu verkaufen
Unser „einarmiger Helfer“ wird ab August ebenfalls nicht mehr benötigt. Wir hatten uns aufgrund der Lage und Einsatzdauer gegen einen Kran und für einen Teleskoplader entschieden, da dieser vielseitiger einsetzbar ist. Wir haben am Gerüst einen Lastturm gebaut, auf den wir ganze paletten setzen konnten um größere Lasten mit wenig Aufwand transportieren zu können.
Es handelt sich um einen Manitou MT1233S
- 12 m Hubarm (Hubhöhe ca. 10m)
- 3,5to Traglast
- Front-, Allrad- und Hundelenkung
- Zugmaul
- Stützpratzen
Wir hatten ihn Ende 2022 gekauft und folgendes machen lassen:
- Dichtsätze aller Hydraulikzylinder
- Austausch Hydraulikschläuche
- Austausch Sperrblock Gabelzylinder
- Reifen Hinterachse
- Nachstellen Bremslamellen
- Anbau Steckdose an Zugmaul (9-polig) um Traktoranhänger zu ziehen
- Kühler (waren alleine fast 4000,- €)
- Großer Service mit allen Filtern und Kleinteilen
Er ist schon 26 Jahre alt, aber er ist im Gegensatz zu den aktuellen Baureihen durch einen „normelen“ Landmaschinenmechaniker reparabel da nur wenig Elektronik verbaut ist. Er gewinnt keinen Schönheitspreis, dafüf ist er in einer bezahlbaren Preisliga. Eine Motorüberholung uns Reparatur der Dieselpumpe steht an, lohnt sich für uns nicht mehr, da er maximal noch drei Arbeitsage im Einsatz ein wird. Unsere Preisvorstellung ist 25.000 €, was unsere Investitionen nicht deckt, aber ein faires Angebot ist und den Angeboten auf den entsprechenden Plattformen entspricht.











